050 Modul sov/sov TEK17
933150050
Sov/sov TEK17
Modul med to soverom og bad med dusj/vask.
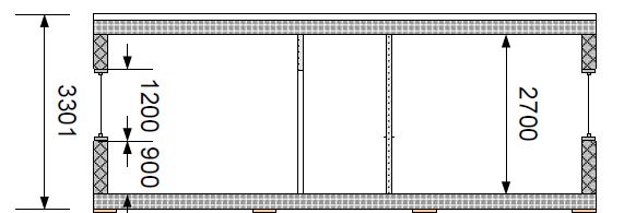
| Høyde | 3301 MM |
|---|---|
| Lengde | 8506 MM |
| Bredde | 2952 MM |
| Vekt | 5800 KG |
| Tilgjengelighet | Produktet finnes i vårt sortiment, men vi kan ikke garantere et spesifikt varemerke ved utleie. Vi tar forbehold om feil i oppgitte mål og vekter. |
| Grafikk | Tegninger er kun ment som illustrasjon. Møblering og inventar vil variere. |