Saneringsvogn asbest
935523620A
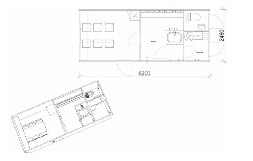
Letthus 620A asbestsaneringsvogn
Asbestsaneringsvogn som tar hensyn til de anbefalte kriteriene på utforming og kvalitet gitt fra arbeidstilsynet. Utstyrt med egen spisedel for opp til 6 personer, samt undertrykksvifte i uren sone som besørger riktig luftstrøm i alle innvendige områder. Trykkvann kobles til via Gardenainntak på utsiden.
Inntak:

Sjekk om du med ditt førerkort kan trekke denne vognen:
Tilhengerkalkulator | Statens vegvesen
| Maks kjørehastighet | 80 km/t |
|---|---|
| Maks totalvekt | 2000 kg |
| Strøm | 230V/32A 3-fas |
| Høyde | 298 CM |
| Lengde | 730 CM |
| Bredde | 230 CM |
| Toalett | Ja |
| Vekt | 1350 KG |
| Tilgjengelighet | Produktet finnes i vårt sortiment, men vi kan ikke garantere et spesifikt varemerke ved utleie. Vi tar forbehold om feil i oppgitte mål og vekter. |
| Grafikk | Tegninger er kun ment som illustrasjon. Møblering og inventar vil variere. |