Letthus m/kontor 2 personer, møterom 10 personer
935313750KM
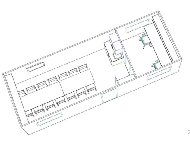
Letthus 750KM kontor, møte-/spiserom, garderobe
En fleksibel kontorbrakke for to personer med tilstøtende møterom. Passer godt på større vei- og anleggsprosjekter hvor det er en fordel å være tett på der det skjer med mulighet for rask forflytning. Et luftig kontorrom som oppleves imøtekommende for de besøkende med gode naturlige lysforhold.
Inntak:

Sjekk om du med ditt førerkort kan trekke denne vognen:
Tilhengerkalkulator | Statens vegvesen
| Maks kjørehastighet | 80 km/t |
|---|---|
| Maks totalvekt | 2600 kg |
| Strøm | 230V/32A 3-fas |
| Høyde | 2980 MM |
| Lengde | 9000 MM |
| Bredde | 2480 MM |
| Toalett | Nei |
| Vekt | 1800 KG |
| Tilgjengelighet | Produktet finnes i vårt sortiment, men vi kan ikke garantere et spesifikt varemerke ved utleie. Vi tar forbehold om feil i oppgitte mål og vekter. |
| Grafikk | Tegninger er kun ment som illustrasjon. Møblering og inventar vil variere. |