Liebherr 42 K

71152542K
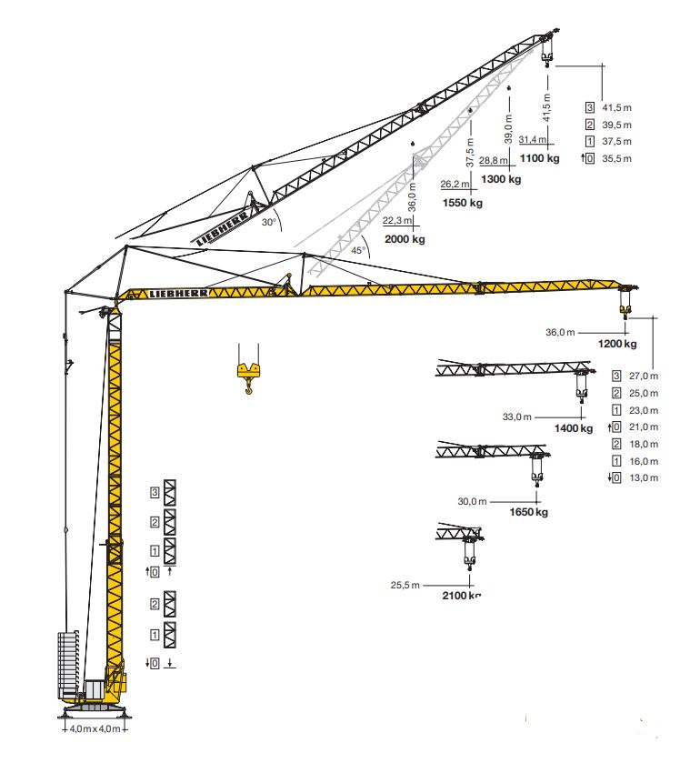
Selvreisende kran med fagverkskonstruksjon. 
  • Liebherr 42 K
  • Utligger: 25,5 - 36 m 
  • Krokhøyde: 20 - 26 m 
  • Spisslast: 1100 Kg 
  • Makslast: 4000 Kg


 

/Files/Files/Brukermanual/42K.pdf
42K.pdf 631 KB
True